Vielseitige Gewerbefläche im Kollwitz-Kiez

Metzer Straße 17, 10405 Berlin–Prenzlauer Berg

47 m² Nutzfläche plus 15 m² Lager 

2 Zimmer

225.000 € 

Top-Lage im Herzen des Prenzlauer Bergs

optimale Verkehrsanbindung

universeller Grundriss

großer beheizter Lagerraum

repräsentativer Gründerzeit-Altbau

bestehendes Mietverhältnis mit solider Rendite

Beschreibung

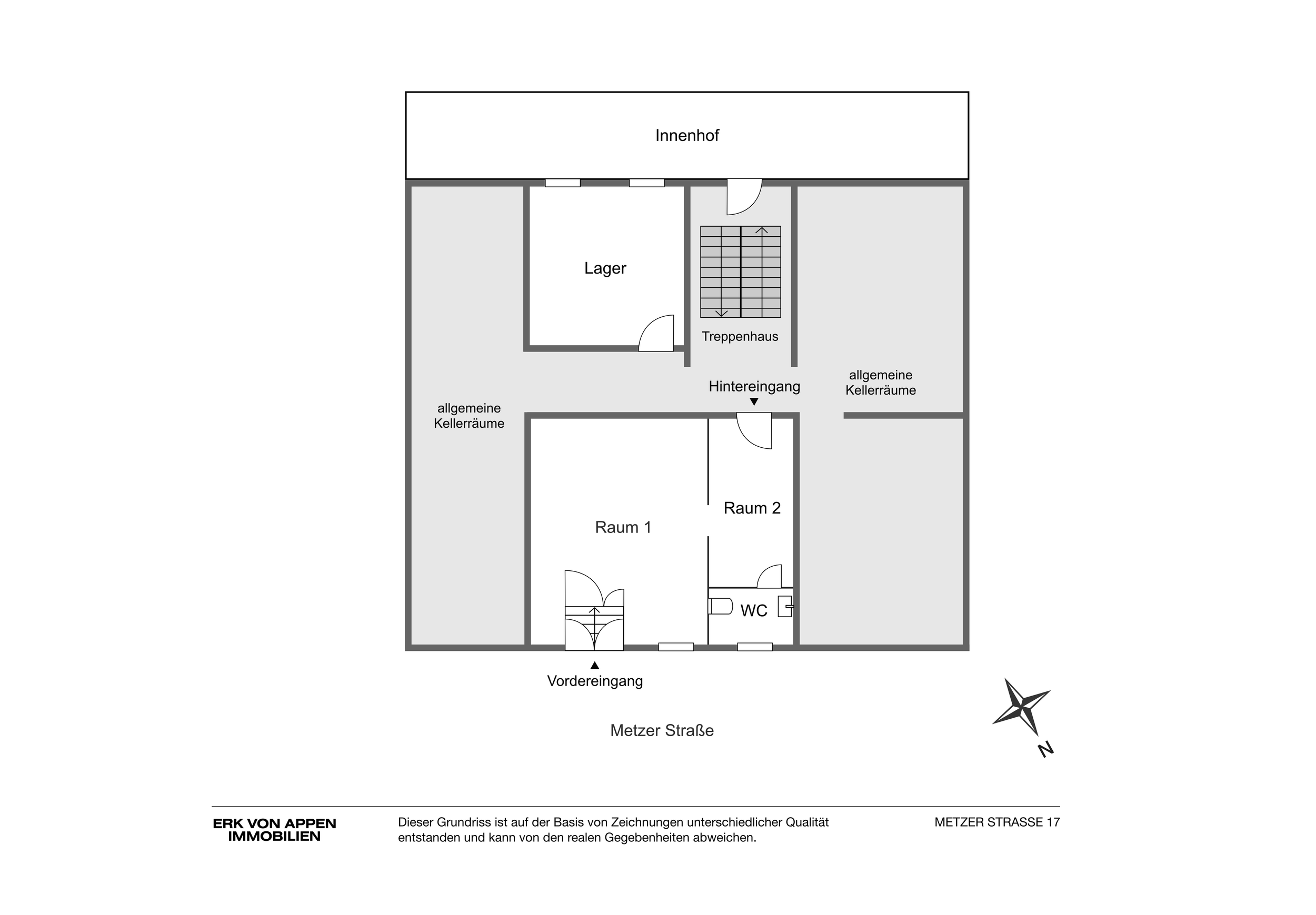
Die im Souterrain des Vorderhauses gelegene Gewerbefläche ist durch die großen Fenster verhältnismäßig hell und sonnig. Der universelle Grundriss ermöglicht zahlreiche Nutzungen, von klassischer Büronutzung über Praxisräume für Therapeuten bis Künstler-Atelier. Raum 1 bietet entspannt Platz für vier Büro-Arbeitsplätze. Raum 2 eignet sich als Pausenraum mit einer kleinen Küchenzeile.

Das Objekt verfügt über einen Vorder- und einen Hintereingang, über den ein ca. 15 m² großer beheizter Lagerraum direkt angeschlossen ist. Hier können auch empfindliche Objekte wie Akten, Bücher, Möbel etc. gelagert werden.

Das 1876 erbaute Wohnhaus steht in einer eleganten Reihe klassizistischer Fassaden, die einem breiten Trottoir zugewandt sind. Die Metzer Straße ist in der Mitte von einer Flanier-Allee geteilt, die die bürgerliche Stadtarchitektur unterstreicht und die Noblesse eines sorgfältig gepflegten Gründerzeit-Viertels ausstrahlt.

Auf einen Blick

Metzer Straße 17, 10405 Berlin-Prenzlauer Berg


Gewerbefläche im Vorderhaus Souterrain

Nutzfläche ca. 47 m²

2 Eingänge (Vorder- und Hintereingang)

Sondernutzungsrecht an beheiztem Lagerraum (ca. 15 m²)

Hausgeld 204,02 € p.m. (inkl. Heizkosten)


Baujahr 1876

nach WEG aufgeteilt 2002

Fernwärme mit Heizkörpern

Energieverbrauch 108,1 kWh/(m²*a), Verbrauchsklasse D

Glasfaseranschluss geplant in 2026


Kaufpreis 225.000 €

Maklerprovision käuferseitig 7,14% (inkl. MwSt.)

Kapitalanlage

Die Gewerbeeinheit ist derzeit kurzfristig kündbar an einen Büromieter vermietet. Der Mieter würde das Mietverhältnis bei Interesse gerne langfristig fortsetzen.

774,56 € p.m. aktuelle Nettokaltmiete zzgl. Nebenkosten

3% Mietsteigerung jährlich

4,16 % Anfangsrendite (24,2-fache Jahresmiete)

Grundriss

Lage

Die Metzer Straße 17 liegt im Herzen des Prenzlauer Bergs, nur wenige Geh-Minuten vom Kollwitz-Platz entfernt, der mit seinen pittoresken Altbaufassaden, bunten Wochenmärkten und zahlreichen Cafés und Restaurants zu den beliebtesten Nachbarschaften Berlins zählt. Aber auch die unmittelbare Umgebung bietet zahlreiche Lunch-Spots und beliebte Cafés wie das Café Anna Blume, das Café Liebling oder das Lisa Kern Café direkt in der Metzer Straße.

Die Anbindung an den ÖPNV ist optimal. Um die Ecke hält die Tram M2 an der Haltestelle Prenzlauer Allee / Metzer Straße. Von dort ist die Lage im dichten Takt direkt mit zentralen Knotenpunkten wie dem Alexanderplatz (Fahrzeit ca. 3 Minuten) verbunden.

 

Interessiert?

Möchten Sie mehr über das Objekt erfahren oder einen Besichtigungstermin vereinbaren?
Ich freue mich über Ihre Nachricht.